4-6 sängplatser
70 m²
Från 13 900 kr per vecka
vecka 9 -2026 HÖGFJÄLLET SÄLEN 6 bäddar (4+2), 70 kvm, Bastu, utsikt mot backen, WiFi ingår, Ski in/Ski out!
I år hyr vi ut vår etagelägenhet på Brf Högfjället under vecka 9 sön-sön. Superfina långfärdspår som man inte behöver betala för likt anläggningarna i Lindvallen och Tandådalen m.fl. Man når Högfjällshotellet utan att behöva gå ut, så det är smidigt att ta del av hotellets faciliteter när man önskar. Hundar är välkomna!
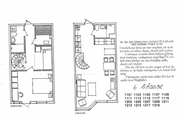
HÖGFJÄLLET ETAGELÄGENHET (se planritning i bilagda bilder)
Entréplan med vardagsrum, köksavdelning, bäddbar soffa, spiraltrappa och dusch/wc. På nedre plan finns ett sovrum med dubbelsäng, en sovalkov med våningssäng, dusch/wc samt bastu. Rogivande utsikt mot backen, burspråk,uteplats, egen p-plats och varmt skidförråd.
En Ica och biograf i direkt närhet. Massor med sportlovsaktiviteter anpassade för barn genom hotellet och skistar.
Pris 13 900 kr exkl städning (lakan och handukar ingår ej).
Passa på att ta del av denna lugna plats med direkt närhet till alla faciliteter på Högfjället och i närområdet.
Pris per vecka 13900 kr
Längdskidåkning
Slalom/Snowboard
Snöskoterkörning
Bredband
Hundar är välkomna
Mobiltelefontäckning
Utomhusmöbler
Utomhusplats (terrass etc)
Separata sovrum
Tv
Matlagningsmöjligheter
Diskmaskin
Frys
Mikrovågsugn
Kylskåp
Torkskåp
Bastu
Dusch
Tvättmaskin
WC
Värd:
Alexandra D.












Stugbasen en del av Stugknuten uthyrning AB, KIVRA: 556681-5238, 106 31 Stockholm, info@stugbasen.com